辰野宮木 建売住宅
価格2,880万円 間取り2階建て
所在地上伊那郡辰野町
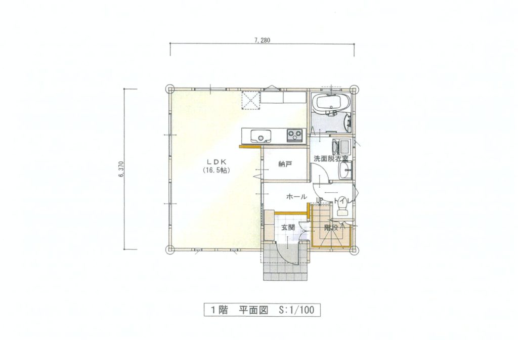
面積90.53m² (27.39坪)
※売主に付き、手数料はかかりません ※建物・地盤10年保証 ※制振装置付き住宅 ※省エネ基準適合住宅(ZEH水準) ※24時間アフター受付可能
| 物件種目 | 土地 / 建物 |
| 権利関係 | 所有者 |
| 地積 | 公簿 229.20m² (69.33坪) |
| 地目 | 宅地 |
| 接面道路 | 公道 位置指定無 |
| 接道方面 | 南西 2.0m |
| 私道負担 | 有 48.34㎡ 共有持分1/2 |
| 建薇率 | 60% |
| 容積率 | 200% |
| 用途地域 | 第2種中高層住居専用 |
| 都市計画地域 | 未線引 |
| 道路計面 | 無 |
| 区画整理 | 無 |
| 現状 | 空家 |
| 引渡 | 即日 |
| 構造 | 木造合金メッキ鋼板葺2階建て |
| 築年月 | R7年6月(新築) |
| 水道 | 公営 水道加入金 |
| 電気 | 中部電力 |
| 雑排水 | 本下水 下水道加入金 |
| 汚水 | 本下水 下水道加入金 |
| 取引態様 | 売主 |







